Foamglas® T4+ Seeria 1200×600 mm
Foamglas® T4+ seeria 1200×600 mm plaate kasutatakse kogu hoone sisemiste ja välimiste osade ulatuses. T4+ seeria isolatsiooni soojusjuhitavus on 0,041 W / (m · K) ja UDL-i survetugevus 600 kPa ning seejuures on toode ka täielikult vee- ja niiskuskindel.
Board plaadi sisemus koosneb vahtklaasist ja vastab A1 tulekassile, kuid esiküljele on tehases lisatud õhuke fliisist kate, mille tulemusena on materjali tuleklass E.
Ready Board isolatsioonitoodetel on tehases paigaldatud pealmine bituumeni kiht, mis võimaldab paigaldada hüdroisolatsiooni kasutades nt põletit.
Vahtklaas on peaaegu 100% puhtast klaasist valmistatud isoleeriv materjal, mis saadakse keeruka tootmisprotsessi käigus, moodustades erineva suurusega klaasraamist paneelid. Paneeli sisemus moodustub süsihappegaasiga (CO2) täidetud ja suletud kärgedest. Vahtklaasi kasutatakse tavapäraselt hoonetel, kus oluline on vastupidavus niiskusele, näiteks veetöötlushooned, basseinid, rohekatused jne, suure koormusega katustel nagu parkimiskatused, päikesekatused, masinate katused jne või hoopis maa-aluseks põranda soojustamiseks.

Tarne objektile alates:
Tarne objektile alates:
Kirjeldus
Foamglas® T4+ seeria
Foamglas® T4+ seeria isolatsioonid on valmistatud spetsiaalselt sorteeritud taaskasutatavast klaasist (≥ 60%) ja looduslikest toorainetestst nagu liiv, dolamiit ja lubi. Materjal on:
- Vee- ja niiskuskindel
- Näriliste- ja putukakindel
- Vastupidav keemilistele ühenditele, sh happekindel
- Kergelt töödeldav
- Mittesüttiv
- Veeauru mitteläbilaskev
- Mõõtmetelt stabiilne
- Ökoloogiline
- Radooni isoleeriv
Paigaldus
Lisainfo
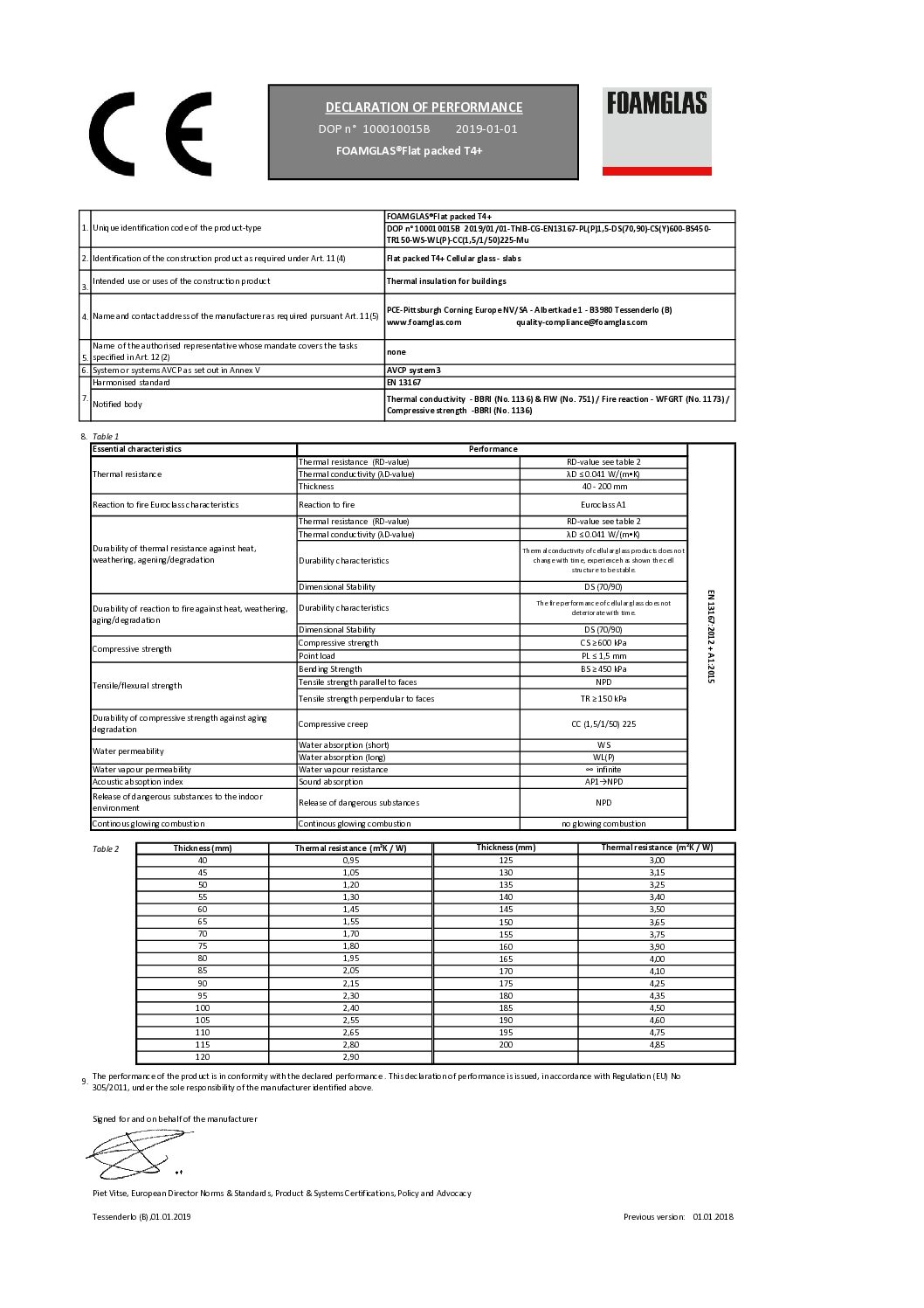
| Paksus | 40-200 mm |
|---|---|
| Mõõtmed | 1200×600 |
| Tihedus | 115 kg/m³ |
| Survetugevus | ≥ 600 kPa |
| Lambda ehk soojusjuhtivustegur (λ) | ≤ 0,041 W/(m·K) |
| Veeauru läbilaskvus vastavalt EN ISO 10456 | μ = ∞ |
| Hügroskoopsus ehk niiskusimavus | 0 |
| Tuletundlikkus (EN 13501-1) | Euroklassile A1 vastav materjal, mittesüttiv, mürgiste aurudeta |
| Sulamistemperatuur (DIN 4102-17) | >1000 °C |
| Temperatuuritaluvus piirid | -265°C kuni +430°C |
| Soojuspaisumistegur (EN 13471) | 9 x 10-6 K-1 |
Dokumendid

Foamglas® T4+ Andmeleht ENG
Manuse suurus: 134.57 KBLae alla
Foamglas® T4+ seeria sertifikaat ENG
Manuse suurus: 597.39 KBLae alla
Foamglas® T4+ Toimivusdeklar ENG
Manuse suurus: 326.82 KBLae alla





